Information
- PLOTS FOR A PAIR OF TWO BEDROOM SEMI-DETACHED BUNGALOWS
- PERIOD SEMI-DETACHED COTTAGE AT THE FRONT OF THE SITE
- NO FORWARD CHAIN
- EASY WALKING DISTANCE TO WICKHAM SQUARE AND AMENITIES
- TUCKED AWAY LOCATION
- CONSERVATION AREA
Description
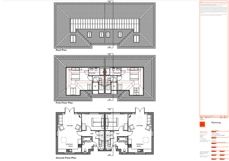
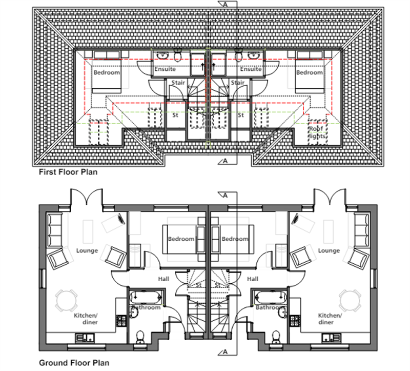
A rare opportunity to acquire a period two bedroom semi-detached cottage and building plots to the rear for a pair of two bedroom semi-detached bungalows with planning permission granted reference 23/00600/FUL.Further details can be downloaded from the Winchester Planning Portal.
www.winchester.gov.uk/planning/planning-applications
The Location
Wickham is an historic village at the southern end of the Meon Valley which offers all local amenities. The larger centres of Fareham and Hedge End are close by with both having easy access to the M27 motorway network.
Directions
Turn right out of Wickham Square towards Bishops Waltham and the access to the building plots can be found, after a short distance, on the right hand side just before no 3, Old Post Office Cottages.
Services:
All mains services are available for connection to the land.
Tenure:
Freehold.
Agents Note:
All measurements contained herein are to be considered approximate only.
The purchaser will be required to carry out some landscaping TBD.
Viewing
Strictly by appointment with vendor’s
Sole Agent BYRNE RUNCIMAN of Wickham.










